$1,949,000
1,984
SQ FT
$982
SQ/FT
1575 Willowmont Avenue
@ Meridian - 14 - Cambrian, San Jose
- 4 Bed
- 3 (2/1) Bath
- 2 Park
- 1,984 sqft
- San Jose
-
-
Sat Feb 21, 1:30 pm - 4:00 pm
-
Sun Feb 22, 1:30 pm - 4:00 pm
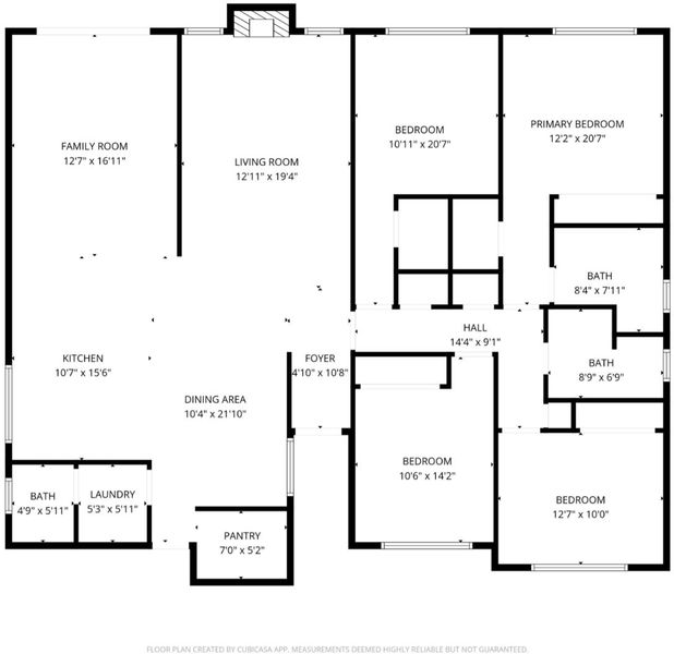
Modern lines and chic finishes define this stunning 4-bedroom, 2.5-bathroom home in the heart of Cambrian. Offering 1,984 sq ft of living space plus a permitted 120 sq ft ADU, this thoughtfully upgraded property blends style, comfort, and functionality. The open floor plan showcases a permitted kitchen remodel featuring a Bosch induction cooktop and convection oven, custom cabinetry, a central island, Heath Tile backsplash, stained oak flooring with toe-kick lighting, skylight, walk-in pantry, and indoor laundry with a half bath. Major updates include a 2016 composite roof and HVAC system, with the furnace relocated to the attic to maximize storage. The primary ensuite was remodeled in 2022, and all bathrooms feature Toto toilets. Additional high-end touches include California Closet organizers with cedar linings and a fully networked CAT6 system with premium Wi-Fi hubs. Enjoy energy efficiency with owned solar and added comfort with a water softener system. The living room centers around a wood-burning fireplace with a gas starter and clean-burning insert. Beautifully landscaped grounds include fruit trees and encapsulated bamboo for added privacy. This home is a must-see.
- Days on Market
- 1 day
- Current Status
- Active
- Original Price
- $1,949,000
- List Price
- $1,949,000
- On Market Date
- Feb 18, 2026
- Property Type
- Single Family Home
- Area
- 14 - Cambrian
- Zip Code
- 95118
- MLS ID
- ML82035431
- APN
- 447-18-066
- Year Built
- 1963
- Stories in Building
- 1
- Possession
- Unavailable
- Data Source
- MLSL
- Origin MLS System
- MLSListings, Inc.
Reed Elementary School
Public K-5 Elementary
Students: 445 Distance: 0.3mi
Glory of Learning
Private 4-9 Coed
Students: NA Distance: 0.5mi
Sartorette Charter School
Charter K-5 Elementary
Students: 400 Distance: 0.7mi
Branham High School
Public 9-12 Secondary
Students: 1802 Distance: 0.8mi
Stratford Middle School
Private 6-8 Core Knowledge
Students: 181 Distance: 0.9mi
Our Shepherd's Academy
Private 2, 4-5, 7, 9-11 Combined Elementary And Secondary, Religious, Coed
Students: NA Distance: 0.9mi
- Bed
- 4
- Bath
- 3 (2/1)
- Shower over Tub - 1, Updated Bath, Primary - Stall Shower(s)
- Parking
- 2
- Attached Garage, On Street, Gate / Door Opener, Off-Street Parking, Room for Oversized Vehicle
- SQ FT
- 1,984
- SQ FT Source
- Unavailable
- Lot SQ FT
- 6,300.0
- Lot Acres
- 0.144628 Acres
- Kitchen
- Dishwasher, Island, Refrigerator
- Cooling
- Central AC
- Dining Room
- Dining Area
- Disclosures
- Natural Hazard Disclosure
- Family Room
- Separate Family Room, Kitchen / Family Room Combo
- Flooring
- Tile, Hardwood
- Foundation
- Concrete Perimeter, Crawl Space
- Fire Place
- Other, Wood Burning
- Heating
- Central Forced Air
- Laundry
- Washer / Dryer, In Utility Room, Inside
- Fee
- Unavailable
MLS and other Information regarding properties for sale as shown in Theo have been obtained from various sources such as sellers, public records, agents and other third parties. This information may relate to the condition of the property, permitted or unpermitted uses, zoning, square footage, lot size/acreage or other matters affecting value or desirability. Unless otherwise indicated in writing, neither brokers, agents nor Theo have verified, or will verify, such information. If any such information is important to buyer in determining whether to buy, the price to pay or intended use of the property, buyer is urged to conduct their own investigation with qualified professionals, satisfy themselves with respect to that information, and to rely solely on the results of that investigation.
School data provided by GreatSchools. School service boundaries are intended to be used as reference only. To verify enrollment eligibility for a property, contact the school directly.





































